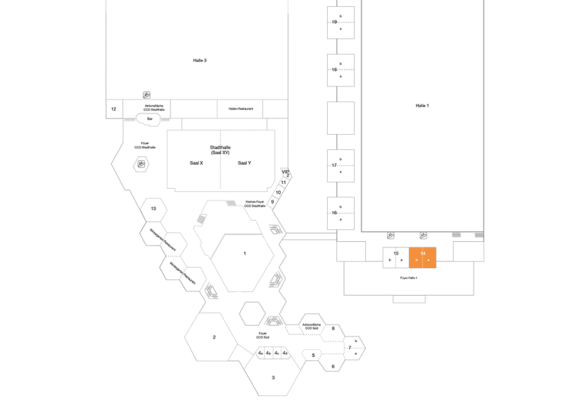
Raum 14
CCD Congress Center DüsseldorfRaum 14 befindet sich im ersten Obergeschoss der Halle 1 und bietet einen Blick in das Foyer der 2019 eröffneten Halle. Mit einer Gesamtfläche von 199 m² bietet der Raum Platz für bis zu 191 Personen. Die vorhandene Veranstaltungstechnik unterstützt unterschiedliche Nutzungsformate. Durch mobile Trennwände kann die Fläche flexibel in zwei separate Räume mit jeweils etwa 97 m² unterteilt werden. Ein dem Raum zugeordnetes, eigenes Foyer steht zur Verfügung. Zudem besteht ein direkter Zugang zum CCD Congress Center Düsseldorf.
Details auf einen Blick
Gesamtfläche: 199 m²
Kapazitäten: max. 191 Personen
Gesamthöhe: 3,74 m
Raum: teilbar
Bestuhlungsvarianten
Raum 14
Reihenbestuhlung: 191 Personen
Parlamentarische Bestuhlung: 112 Personen
Bankettbestuhlung: 120 Personen
U-Form-Bestuhlung: 44 Personen
Carrébestuhlung: 56 Personen
Raum 14a
Reihenbestuhlung: 98 Personen
Parlamentarische Bestuhlung: 50 Personen
Bankettbestuhlung: 60 Personen
U-Form-Bestuhlung: 30 Personen
Carrébestuhlung: 36 Personen
Raum 14b
Reihenbestuhlung: 94 Personen
Parlamentarische Bestuhlung: 50 Personen
Bankettbestuhlung: 60 Personen
U-Form-Bestuhlung: 30 Personen
Carrébestuhlung: 36 Personen


















