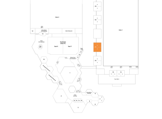
Raum 17
CCD Congress Center DüsseldorfRaum 17 befindet sich im ersten Obergeschoss der Messehalle 1 und verfügt über eine Gesamtfläche von 197 m². Der Raum eignet sich für Meetings, Workshops und Pressekonferenzen mit bis zu 199 Personen. Die moderne Architektur und die vorhandene technische Ausstattung unterstützen unterschiedliche Veranstaltungsformate. Durch mobile Trennwände kann die Fläche flexibel in zwei separate Räume mit jeweils etwa 98 m² unterteilt werden. Ein dem Raum zugeordnetes, eigenes Foyer steht zur Verfügung. Der direkte Übergang zum CCD Congress Center Düsseldorf befindet sich in unmittelbarer Nähe.
Details auf einen Blick
Gesamtfläche: 197 m²
Kapazitäten: max. 199 Personen
Gesamthöhe: 4,48 m
Raum: teilbar
Bestuhlungsvarianten
Raum 17
Reihenbestuhlung: 199 Personen
Parlamentarische Bestuhlung: 100 Personen
Bankettbestuhlung: 120 Personen
U-Form-Bestuhlung: 44 Personen
Carrébestuhlung: 60 Personen
Raum 17a
Reihenbestuhlung: 98 Personen
Parlamentarische Bestuhlung: 50 Personen
Bankettbestuhlung: 60 Personen
U-Form-Bestuhlung: 30 Personen
Carrébestuhlung: 36 Personen
Raum 17b
Reihenbestuhlung: 98 Personen
Parlamentarische Bestuhlung: 50 Personen
Bankettbestuhlung: 60 Personen
U-Form-Bestuhlung: 30 Personen
Carrébestuhlung: 36 Personen


















