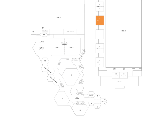
Raum 18
CCD Congress Center DüsseldorfRaum 18 befindet sich im ersten Obergeschoss der Messehalle 1 und verfügt über eine Gesamtfläche von 197 m². Der Raum eignet sich für unterschiedliche Veranstaltungsformate mit bis zu 199 Personen. Die vorhandene technische Ausstattung unterstützt eine flexible Nutzung. Durch mobile Trennwände kann die Fläche in zwei separate Räume mit jeweils etwa 98 m² unterteilt werden. Ein dem Raum zugeordnetes, eigenes Foyer steht zur Verfügung und eignet sich für Empfangssituationen. Der Übergang zum CCD Congress Center Düsseldorf ist fußläufig erreichbar.
Details auf einen Blick
Gesamtfläche: 197 m²
Kapazitäten: max. 199 Personen
Gesamthöhe: 4,48 m
Raum: teilbar
Bestuhlungsvarianten
Raum 18
Reihenbestuhlung: 199 Personen
Parlamentarische Bestuhlung: 100 Personen
Bankettbestuhlung: 120 Personen
U-Form-Bestuhlung: 44 Personen
Carrébestuhlung: 60 Personen
Raum 18a
Reihenbestuhlung: 98 Personen
Parlamentarische Bestuhlung: 50 Personen
Bankettbestuhlung: 60 Personen
U-Form-Bestuhlung: 30 Personen
Carrébestuhlung: 36 Personen
Raum 18b
Reihenbestuhlung: 98 Personen
Parlamentarische Bestuhlung: 50 Personen
Bankettbestuhlung: 60 Personen
U-Form-Bestuhlung: 30 Personen
Carrébestuhlung: 36 Personen
















