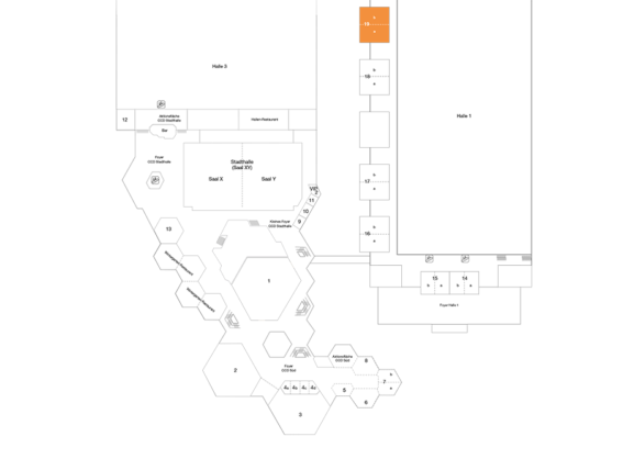
Raum 19
CCD Congress Center DüsseldorfRaum 19 befindet sich im ersten Obergeschoss der Messehalle 1 und verfügt über eine Gesamtfläche von 197 m². Der Raum eignet sich für Veranstaltungen mit bis zu 199 Personen. Durch mobile Trennwände kann die Fläche flexibel in zwei separate Räume mit jeweils etwa 98 m² unterteilt werden. Die vorhandene technische Ausstattung unterstützt unterschiedliche Veranstaltungsformate. Ein dem Raum zugeordnetes, eigenes Foyer steht zur Verfügung und eignet sich für Empfangssituationen. Der Übergang zum CCD Congress Center Düsseldorf ist fußläufig erreichbar.
Details auf einen Blick
Gesamtfläche: 197 m²
Kapazitäten: max. 199 Personen
Gesamthöhe: 4,48 m
Raum: teilbar
Bestuhlungsvarianten
Raum 19
Reihenbestuhlung: 199 Personen
Parlamentarische Bestuhlung: 100 Personen
Bankettbestuhlung: 120 Personen
U-Form-Bestuhlung: 44 Personen
Carrébestuhlung: 60 Personen
Raum 19a
Reihenbestuhlung: 98 Personen
Parlamentarische Bestuhlung: 50 Personen
Bankettbestuhlung: 60 Personen
U-Form-Bestuhlung: 30 Personen
Carrébestuhlung: 36 Personen
Raum 19b
Reihenbestuhlung: 98 Personen
Parlamentarische Bestuhlung: 50 Personen
Bankettbestuhlung: 60 Personen
U-Form-Bestuhlung: 30 Personen
Carrébestuhlung: 36 Personen


















